Apartment For Rent in Fengate Available

146 Hammonds Drive, PE1 5AA Fengate, Cambridgeshire
Asking price of

£925.00

ID: HOAB_003586

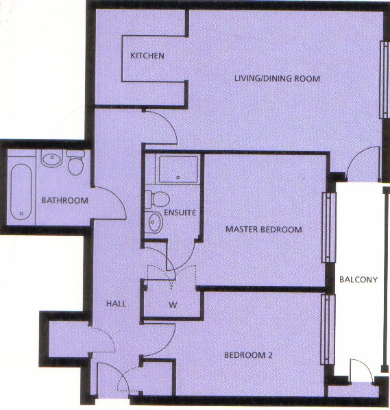
First floor apartment consisting of two bedrooms’ master with double shower En-Suite, three-piece bathroom with shower over, fitted kitchen with integrated appliances, lounge / dining room. The apartments benefit from gas heating and Upvc double glazing. The apartment offers a new concept in city living, within walking distance of the city centre. Under croft parking with electric gate. Communal garden.

Modern First Floor Apartment

Two Bedrooms En-Suite To Master

Fitted Kitchen & Bathroom

Lounge Diner

Gas heating & Upvc double glazing

Balcony

Walking Distance To Town Centre

Secure Undercroft Car Park

Communal garden

Homes About